Edificio Balmes.

Sant Adrià del Besòs, 2020.

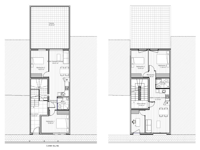
Proyecto para la construcción de un edificio de tres viviendas en el municipio de Sant Adrià del Besòs. Actualmente en proceso de tramitación.

De acuerdo con las condicionantes urbanísticas del municipio para la zona, se proyecta un edificio de tres plantas con una vivienda por planta de aproximadamente 60m² cada una.