Edifici Balmes.

Sant Adrià del Besòs, 2020.

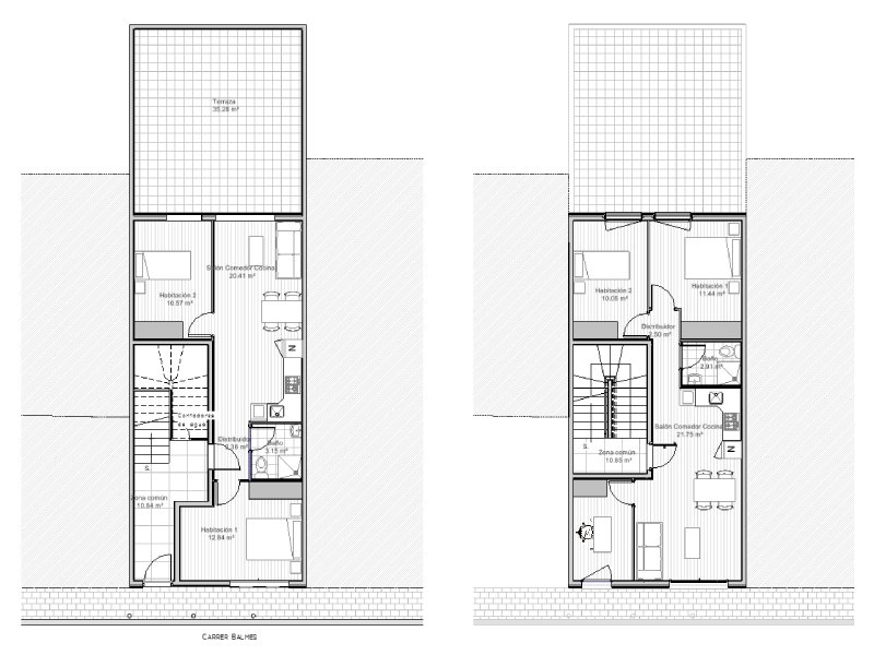
Projecte per a la construcció d’un edifici de tres habitatges en el municipi de Sant Adrià del Besòs. Actualment en procès de tramitació.

D’acord amb les condicionants urbanístiques del municipi per a la zona, es projecta un edifici de tres plantes amb un habitatge per planta d’aproximadament 60m² cadascuna.