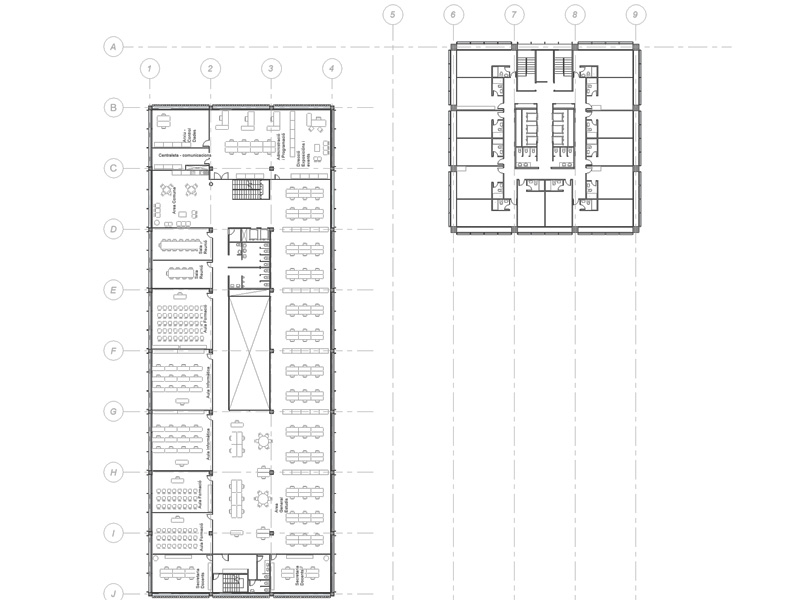
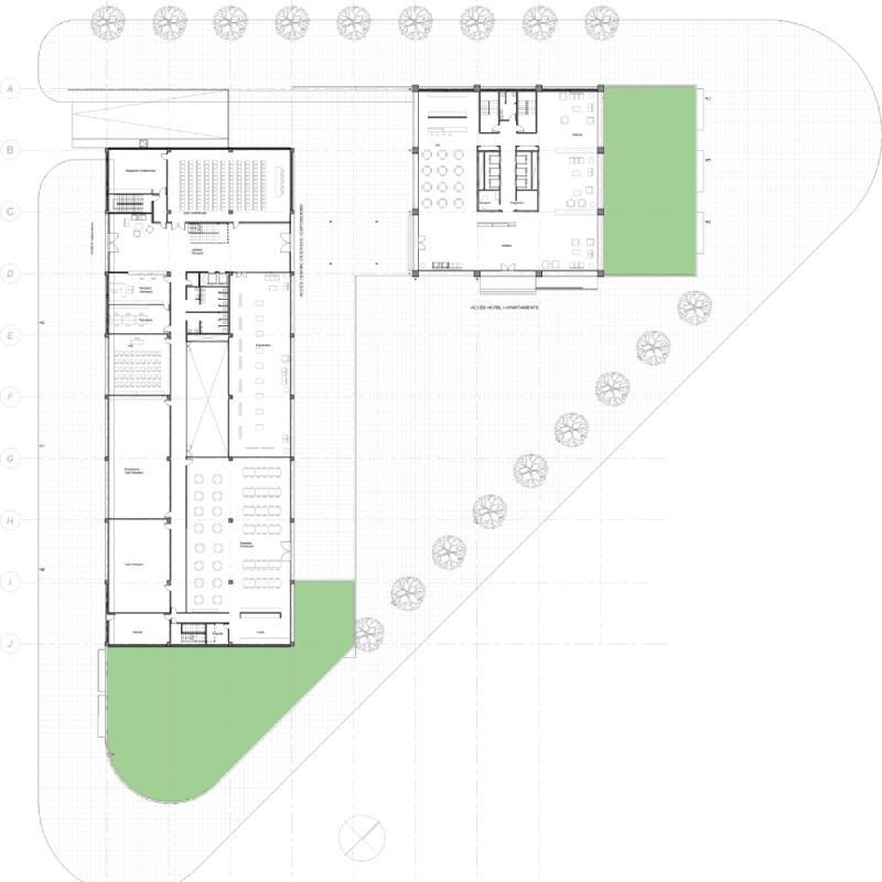
Hotel i Centre d’Estudis, Plaça de les Glòries Catalanes.
Barcelona, 2013
Proposta per a edificació d’una semi illa a l’avinguda Meridiana prop de la Plaça de les Glòries Catalanes a Barcelona.
Es proposen dos edificis; una torre de 22 plantes per a hotel i apartaments, i un volum horitzontal per a centre d’estudis i oficines. Els dos edificis s’uneixen compartint un soterrani per a aparcament.
Els edificis es desenvolupen com a espais versàtils i flexibles, on els tancaments busquen minimitzar la radiació solar a l’estiu, sense impedir la il·luminació natural, facilitant també la ventilació natural i reduint les despeses energètiques.
Usamos cookies en nuestro sitio web. Al hacer clic en "Acepto", usted acepta el uso de cookies.
This website uses cookies to improve your experience while you navigate through the website. Out of these cookies, the cookies that are categorized as necessary are stored on your browser as they are essential for the working of basic functionalities of the website. We also use third-party cookies that help us analyze and understand how you use this website. These cookies will be stored in your browser only with your consent. You also have the option to opt-out of these cookies. But opting out of some of these cookies may have an effect on your browsing experience.
Necessary cookies are absolutely essential for the website to function properly. This category only includes cookies that ensures basic functionalities and security features of the website. These cookies do not store any personal information.
Any cookies that may not be particularly necessary for the website to function and is used specifically to collect user personal data via analytics, ads, other embedded contents are termed as non-necessary cookies. It is mandatory to procure user consent prior to running these cookies on your website.